Curriculum
Proyectos
Contacto
Bootstrap Slider
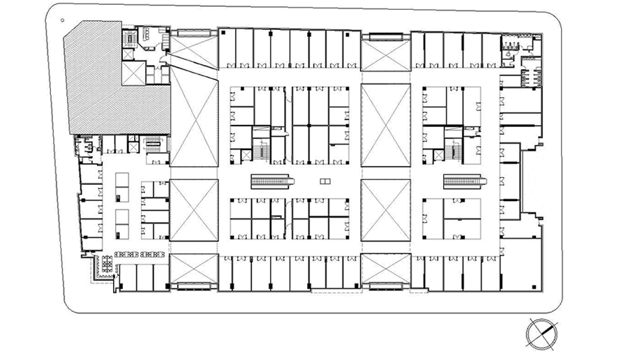
Centro Comercial Puerta Grande
Arquitectos: Enrique Silva Gil, Humberto Silva Gil
Bogotá, Colombia 2010
Proyectos Comerciales