Curriculum
Proyectos
Contacto
Bootstrap Slider
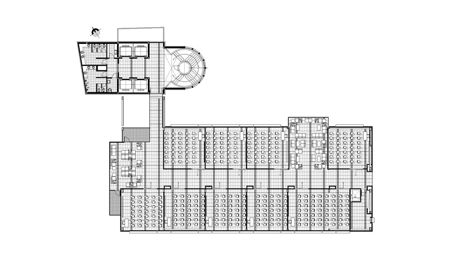
Edificio Binestar Universidad Jorge Tadeo Lozano
Arquitectos: Enrique Silva Gil, Humberto Silva Gil, Mauricio Pinilla Acevedos.
Bogotá, Colombia 1999
Proyectos Institucionales