Curriculum
Proyectos
Contacto
Bootstrap Slider
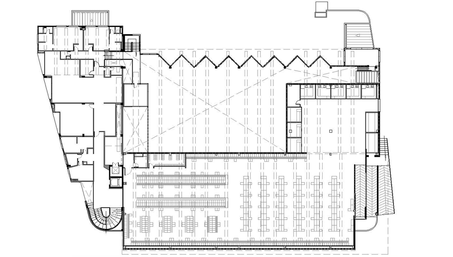
Plataforma Logística y Plaza de Mercado Los Luceros
Arquitectos: Enrique Silva Gil, Humberto Silva Gil
Bogotá, Colombia 2006
Proyectos Institucionales