Curriculum
Proyectos
Contacto
Bootstrap Slider
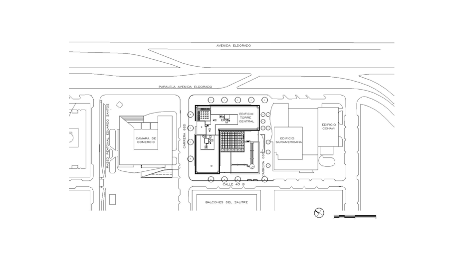
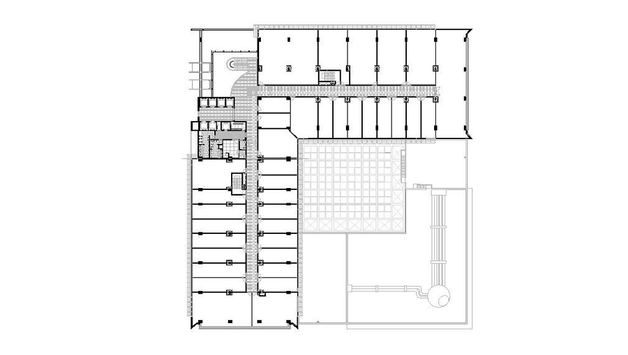
Edificio Oficinas Torre Central
Arquitectos: Enrique Silva Gil, Humberto Silva Gil, Pinto y Gomez Arquitectos
Bogotá, Colombia 2005
Proyectos Oficinas