Curriculum
Proyectos
Contacto
Bootstrap Slider
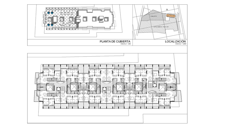
Edificio Apartamentos
Arquitectos: Enrique Silva Gil, Humberto Silva Gil
Cartagena, Colombia 2009
Proyectos Concursos